반포 래미안 트리니원 분양 일정 및 평면도
2025. 7. 3. 23:16ㆍ부동산/부동산 스터디
반응형
“반포에서 분양 기회라니, 이건 놓칠 수 없죠!”
서울에서도 손꼽히는 핵심 입지인 반포동, 그 중심에 서 있는 래미안 트리니원은 올해 가장 주목받는 로또급 청약 단지 중 하나입니다.
삼성물산이 시공하고, 분양가상한제가 적용되는 만큼 청약 전략부터 자금계획까지 꼼꼼히 준비해야 하는 핵심 이슈 드립니다. 지금부터 휘몰아칠 청약 열기에 대비할 전략을 살펴볼게요.

1. 단지 개요 및 배경
- 위치: 서울 서초구 반포동 1109번지, 신반포로 32 일대 (반포주공 3주구 재건축)
- 사업방식: 후분양 아닌 선분양형 재건축, 분양가상한제 적용
- 시공사: 삼성물산 (래미안 브랜드)
- 단지명: 래미안 트리니원 (TriniOne) – ‘삼위일체(Trinity) + One’ 의미의 브랜드명
- 규모: 총 17개 동, 총 2,091세대, 일반분양 약 537세대 예정 (59㎡, 84㎡, 100~165㎡ 등 다양한 평형 구성)

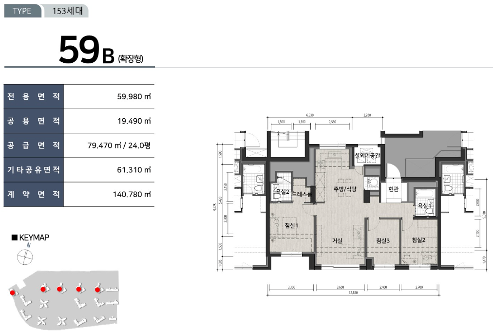
2. 분양일정 및 평면도
- 분양 예정 시기: 2026년 상반기 (청약 모집공고 이후 정확한 일정 확정)
- 총세대수: 2,091세대
- 일반분양세대수: 약 506세대
- 특별공급: 세대수 중 일부 포함 예정
- 전용면적별 일반분양세대수
- 59㎡ 약 456세대 - 가점제 183세대, 무주택자 추첨제 205세대, 무주택자+1주택자 추첨제 68세대
- 84㎡ 약 50세대 - 가점제 35세대, 무주택자 추첨제 13세대, 무주택자+1주택자 추첨제 2세대
- 그 외 100~165㎡ 평형 포함
- 청약 일정: 모집공고 전후 제출 → 일반 1순위 청약 → 당첨 발표 → 계약 순 (상세 일정은 모집공고 확인 필수)







3. 입지
- 교통: 9호선 구반포역 초역세권, 3호선 고속터미널역 도보 접근 가능, 올림픽대로·신반포로 인접 → 서울 전역 이동 편리
- 환경 및 편의시설: 센트럴시티, 신세계백화점 강남점, 서울고속버스터미널, 이마트 등 대형 편의시설 풍부. 반포한강공원, 현충공원 등 녹지 공간 가까움
- 학군: 반포초, 반포중, 세화여중·세화고·세화여고, 서울영국학교(델위치칼리지) 등 명문학군 인접

4. 투자·실거주 포인트
- 브랜드+입지+학군 삼박자가 결합된 단지로 실거주와 투자 모두 강점
- 현금 여력이 있어야 유리: 고가 평형은 자금 준비 중요 ("청약 시 가점보다 현금 확보가 핵심")
- 소형 평형은 대출 조건 유리: 59㎡ 중심 전략 추천
- 재당첨 제한 10년, 전매 제한 3년 등 규제 요소 확인 필요
- 전매·잔금 대출 관리: 실수요자는 1주택 처분 계획도 고려해야 함

5. 커뮤니티
- 수영장 (실내 혹은 옥상형)
- 스카이브릿지 또는 전망 라운지 (고층부)
- 실내 골프 연습장
- 피트니스센터 또는 헬스장
- 사우나 / 스파 공간
- 조식 레스토랑 또는 라운지 공간
- 어린이·키즈룸, 도서관, 커뮤니티 라운지
- 조명·아트월 인테리어가 조화된 출입구 & 로비
반응형
'부동산 > 부동산 스터디' 카테고리의 다른 글
| 신반포 21차, 오티에르 반포 청약 일정 (2) | 2025.07.06 |
|---|---|
| 용산국제업무지구: 서울의 심장 용산에서 무슨 일이! (3) | 2025.07.04 |
| 방배13구역, 방배포레스트자이 분양 완전정리 (1) | 2025.06.19 |
| 반포 1,2,4주구, 반포 디에이치 클래스트 분양 완전정복! (2) | 2025.06.19 |
| 역삼 은하수, 자이 더캐럿 141 청약 정보(조감도, 배치도, 평형별 평면도) (0) | 2025.06.18 |